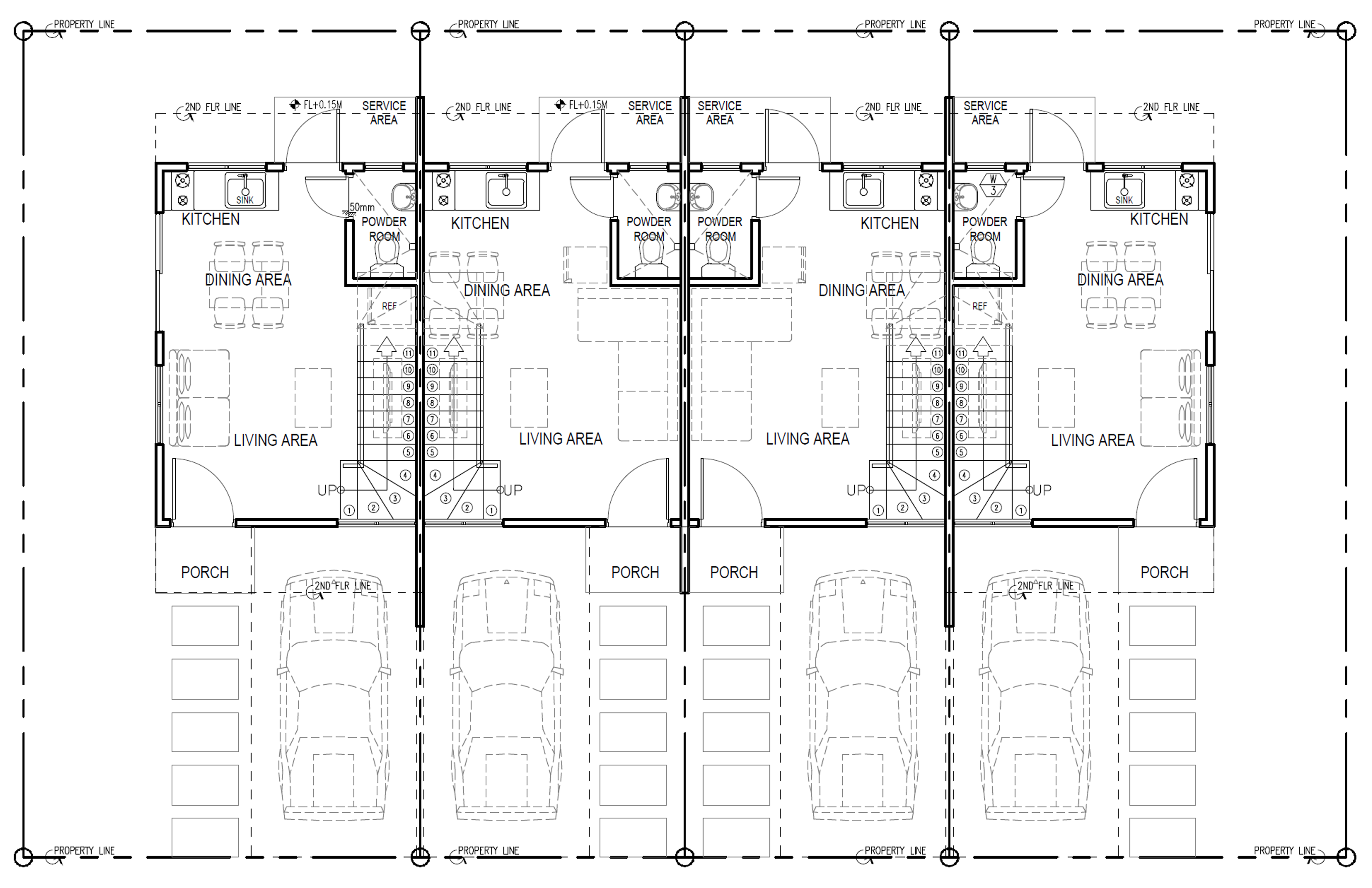
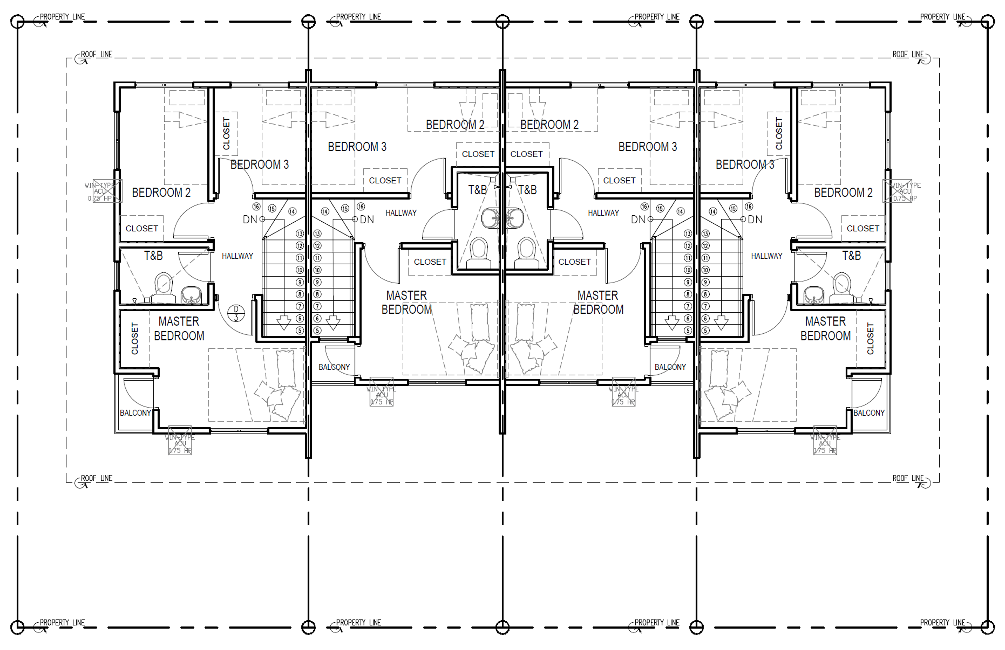
For individuals and young families that are planning to live independently, the Lamea Townhouse is the right home to start making your dreams into a reality with its ample living space.
Start small and simple with Lamea Townhouse! It's affordable and superior value with just enough living space for starting families like you.
