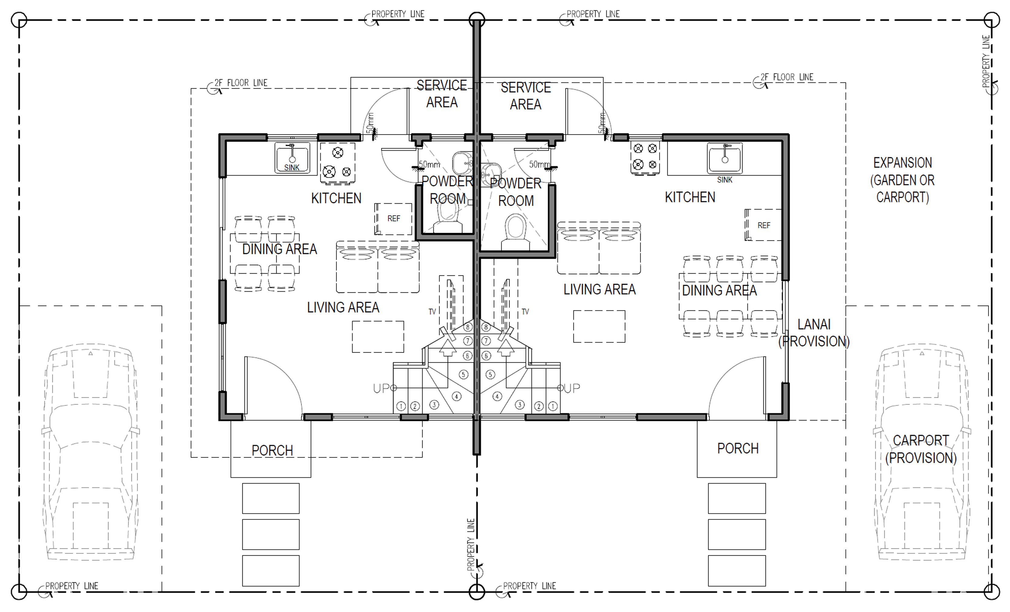
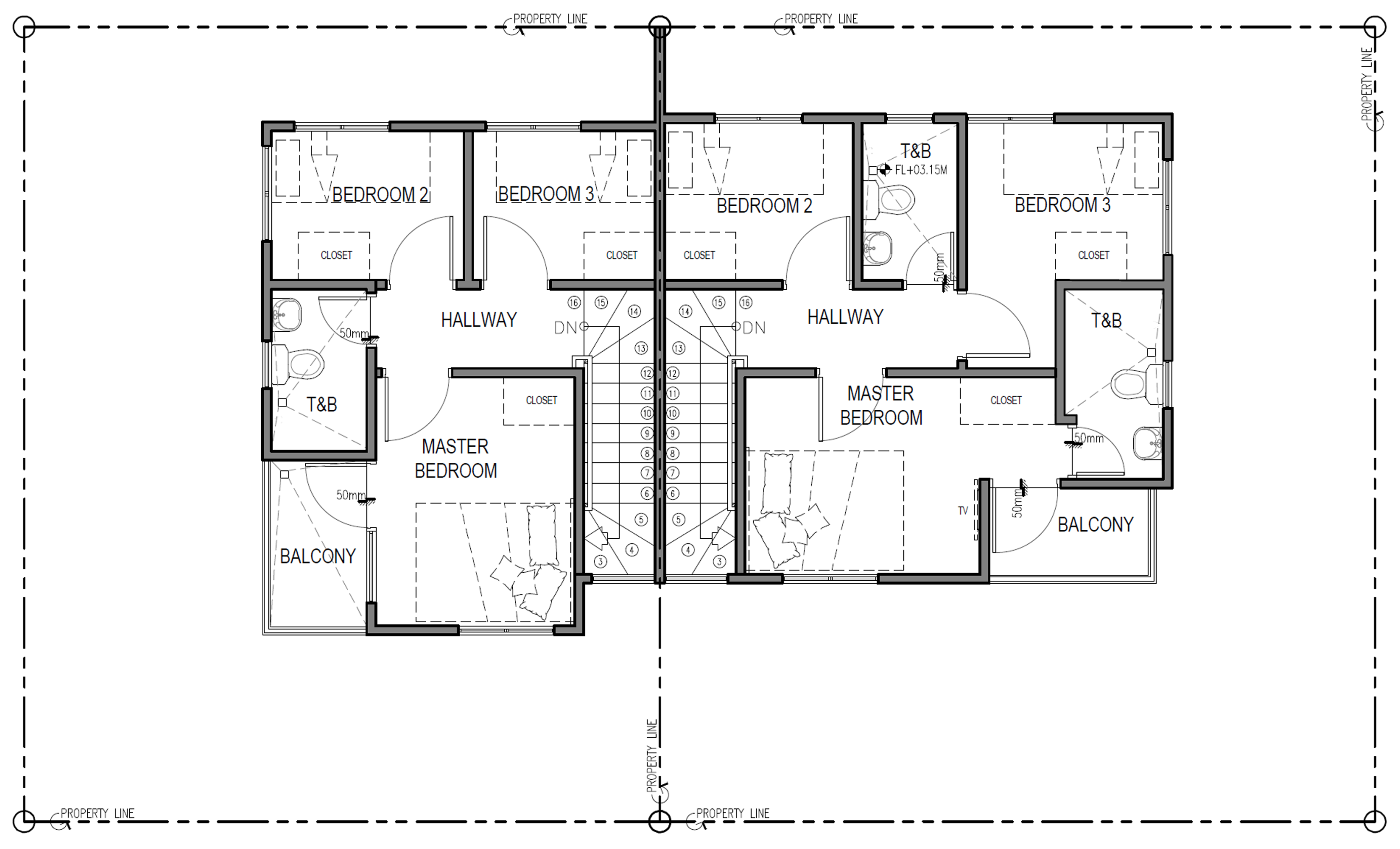
Onea Duplex Deluxe seamlessly blends style, space, and functionality, offering a well-designed home that balances shared living and personal space. Perfect for individuals and families, it provides modern comfort in a spacious and thoughtfully crafted environment.
