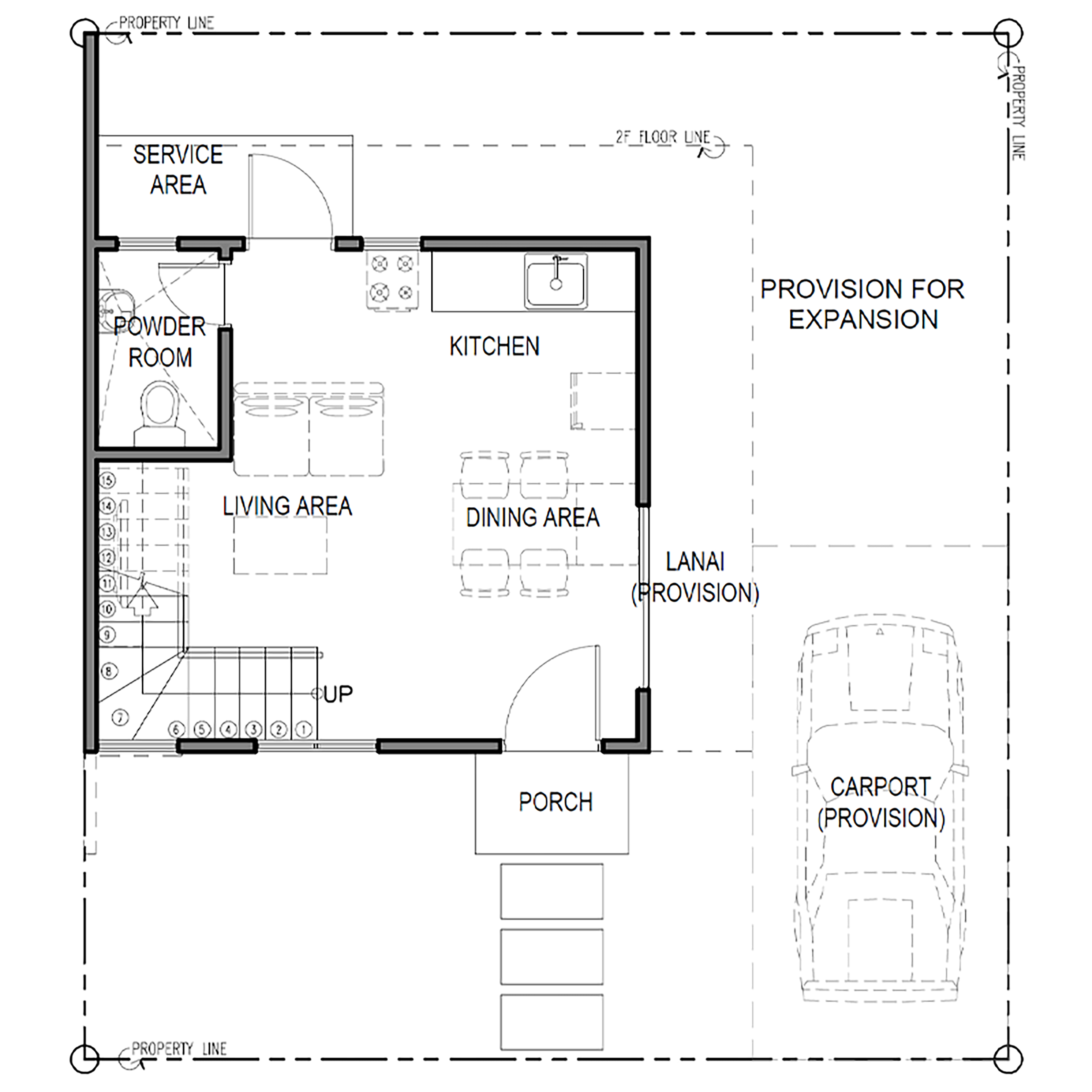
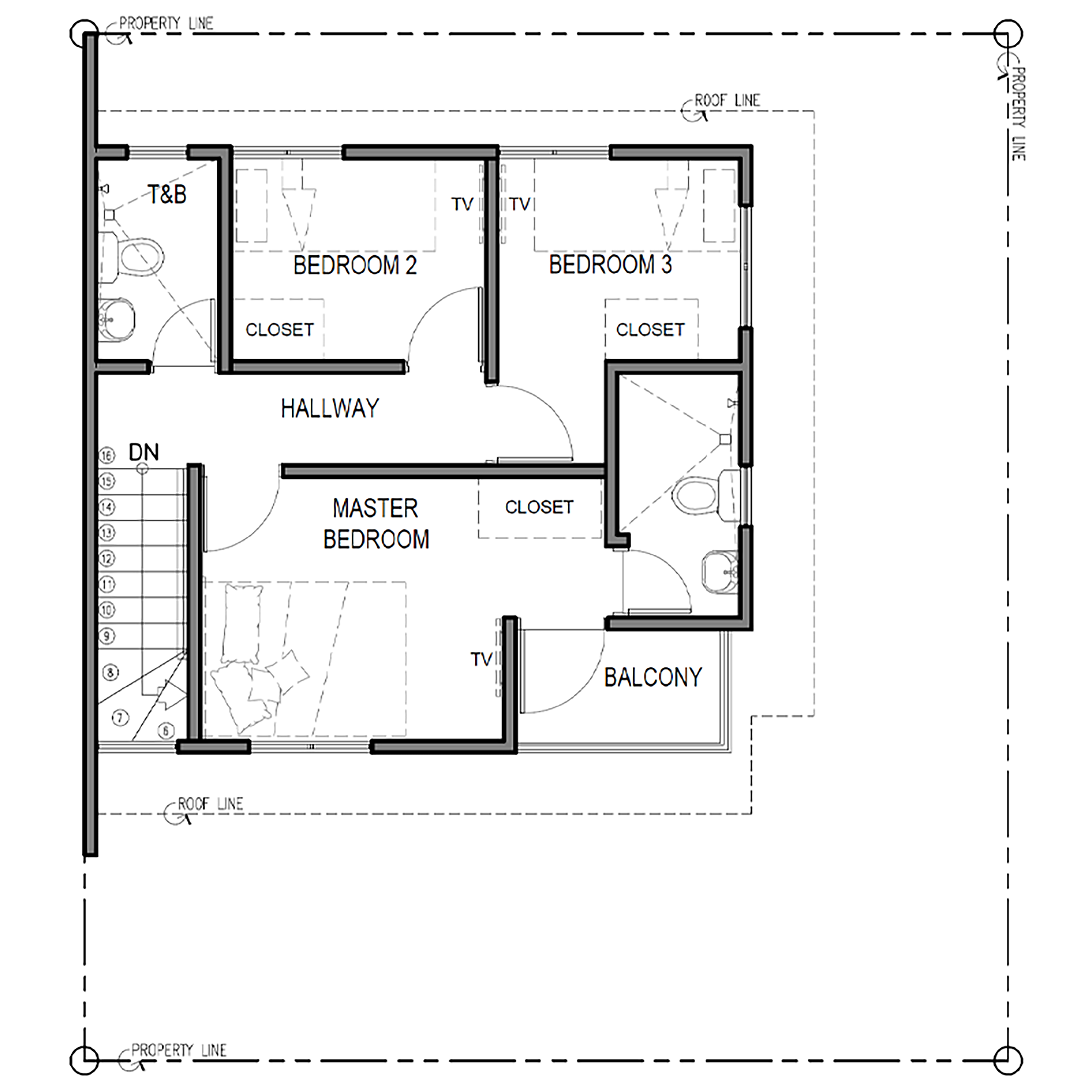
Nothing speaks “dream home” quite like living in a Nanea Single Attached. With more spaces and freedom of mobility, this house model is perfect fit for individuals and families that have experienced success far in life.
Nothing speaks "dream home" quite like living in a Nanea Single Attached. With more spaces and freedom of mobility, this house model is perfect fit for individuals and families that have experienced success far in life.
